• Müügiinfo: + 372 5015546
  • info@treiali2.ee
Treiali 2
Treiali 2
Väikefirmade kodu
  • Tutvustus
  • Asukoht
  • Hoonest
  • Plaanid ja hinnad
  • Kontakt
  • Eesti
  • English
MENU CLOSE back  

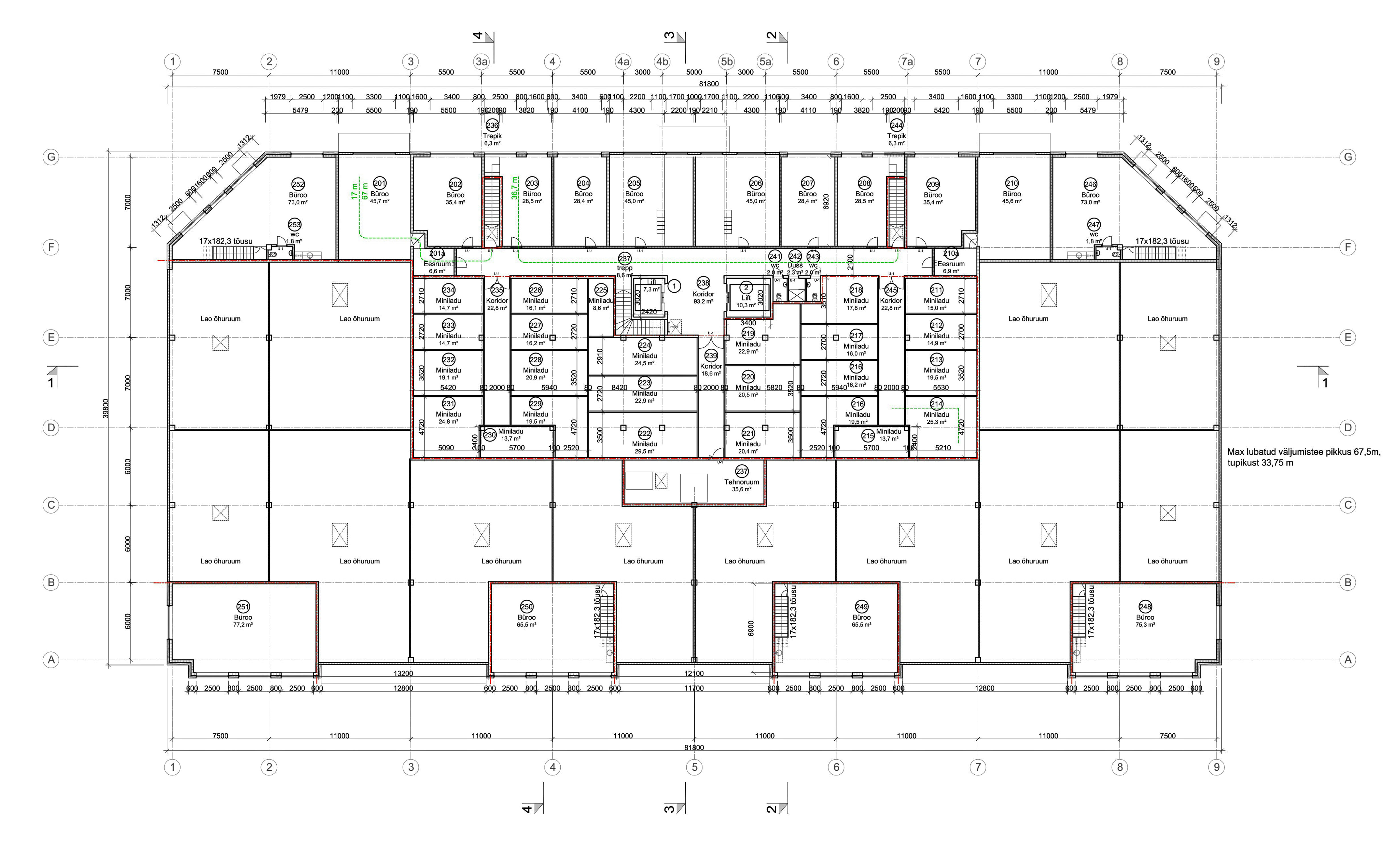
2 korrrus test

You are here:
  1. Home
  2. Plaanid ja hinnad
  3. 2 korrrus test
2 korrrus test
TREIALI 2/4 - Väikefirmade kodu